Réhabilitation des bureaux du département de la Loire – Saint-Etienne Balay
- Adresse :
- Saint-Etienne
- MOA :
- Département de la Loire
- Mission :
- Mission complète
- Equipe :
- CM Economiste (Economiste) + ACROBAT (Fluides) + BOST (Structure)
- Surface :
- 3 269 M2 SDP
- Montant :
- 3,5M €
- Dates
- Livraison 2025
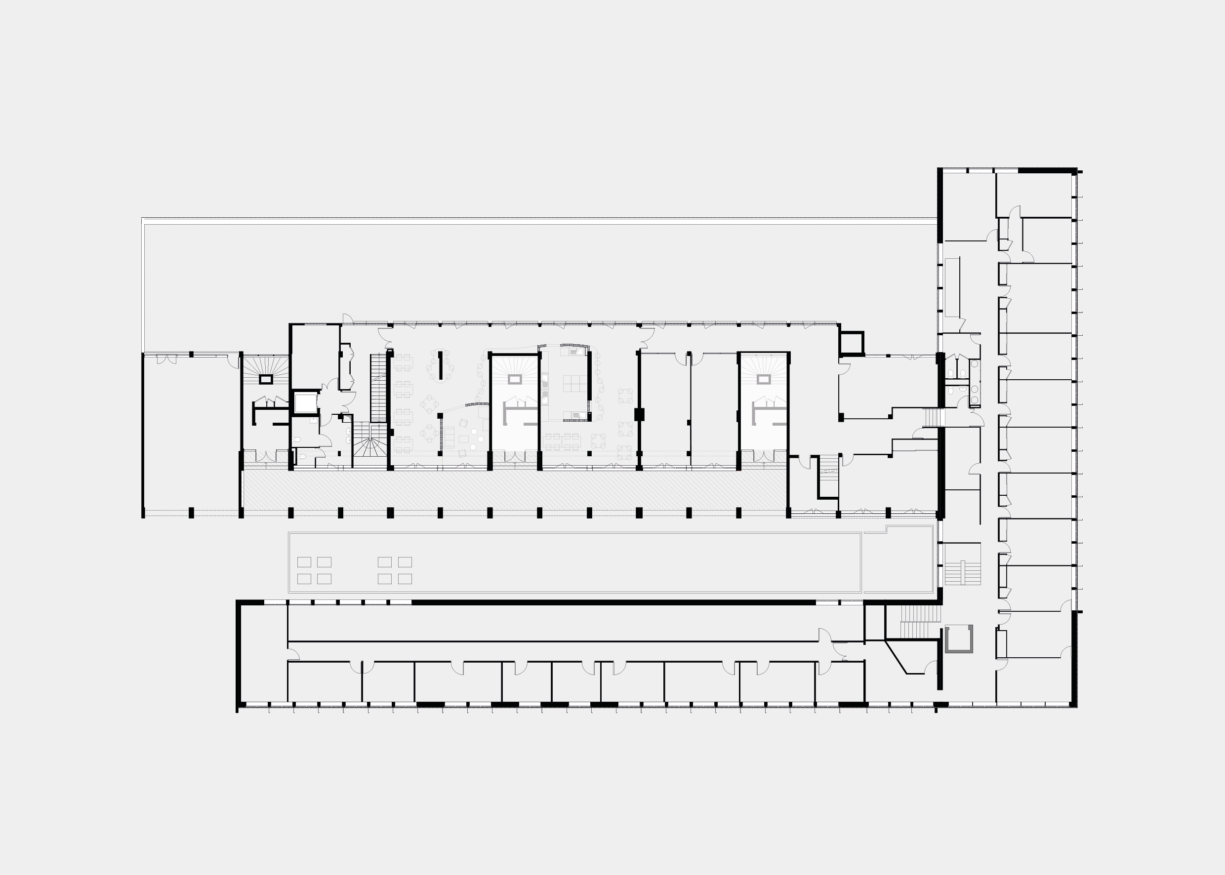
Large opération de réhabilitation des bureaux du département de la Loire, le projet a dû s’inscrire dans les aménagements et architecture des précédentes rénovations. Les interventions extérieures se sont limitées au remplacement d’une partie de la façade par un mur-rideau et la création d’un auvent. Ces aménagements, largement vitrés, permettent de recomposer les bureaux et espaces communs tout en proposant une plus grande luminosité. Les teintes sont reprises de la précédente rénovation. Ainsi, la prédominance des teintes rouge et orange est ici atténuée par l’usage massif du bois en menuiserie, ameublement et revêtements divers. Les bureaux sont pensés pour rompre avec le cloisonnement opaque précédent en proposant des espaces les plus ouverts et transparents possibles. Ainsi, bien que cloisonnés, ces derniers permettent aux circulations et espaces communs d’être largement éclairés naturellement et ventilés. Le verre, le bois et les quelques éléments textiles de teinte chaude permette de proposer une relecture contemporaine à ces espaces de travail.